by DYLAN NOLAN
***
The Silfab Solar manufacturing facility in Fort Mill, South Carolina reported it’s second chemical leak of the week this morning (March 5, 2026) – prompting a work stoppage order from state environmental regulators While Silfab employees – and county officials who controversially zoned the facility to operate next to an elementary school -insisted there was “no danger to the community,’ students at the school have been diverted away from the facility and dismissed in the wake of the chemical release.
South Carolina’s Department of Environmental Services (DES) initiated an investigation into Silfab Solar following the first spill. Agency director Myra Reece subsequently issued a “directive to cease operations,” following the accidental release of Hydrofluoric acid at the facility this morning.
According to York County officials, “the leak is within designed containment and does not pose a health risk.”
***
***
Prior to student’s arrival at school, administrators notified parents of the hydrofluoric acid leak, which came just two days after Silfab Solar initiated a hazmat response by spilling a significant quantity of the corrosive chemical potassium hydroxide.
The initial spill prompted dozens of parents to pick their children up from the Flint Hill Elementary School – which abuts Silfab’s property.
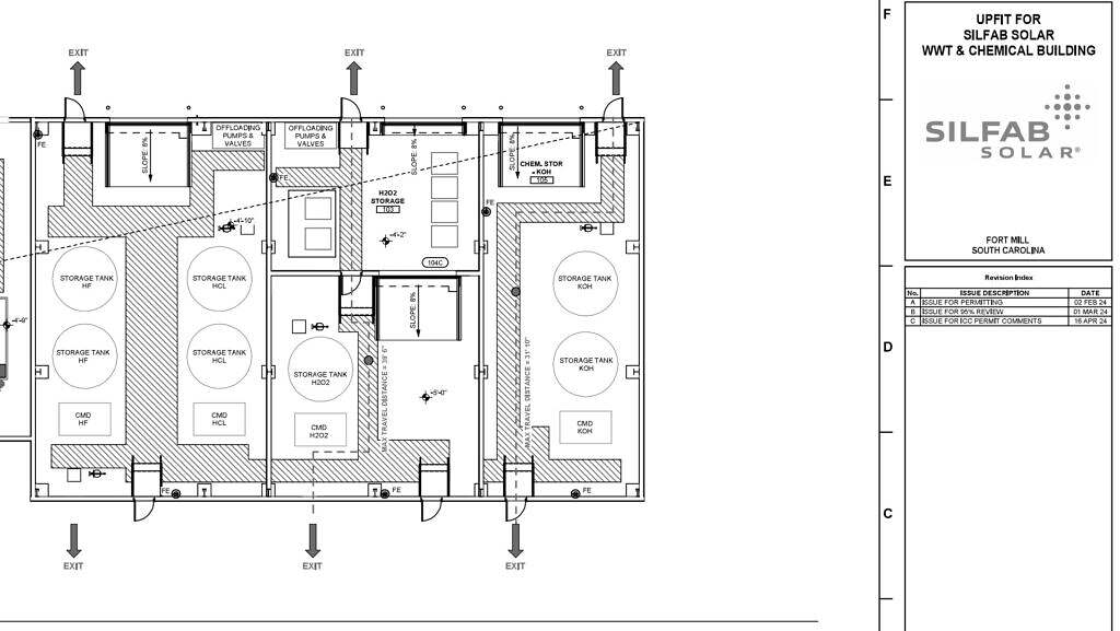
A “hazardous condition” warning photographed on a door at the Silfab facility noted a “leak a the bulk head corner of the (hydrogen flouride) tank.”
***
***
The U.S. Centers for Disease Control (CDC) describes hydrogen fluoride as a “serious systemic poison.”
After today’s spill Silfab Solar initially told FITSNews “there is no emergency at the Silfab Solar site in Fort Mill this morning and no need for emergency services or any public safety concerns.”
Be that as it may the Fort Mill School District closed the nearby Flint Hill Elementary School “out of an abundance of caution.”
***
? Wednesday’s 911 call of #SilfabSolar employee vomiting and struggling to breathe.
— Caitlin (@CaitlinYorkSC) March 5, 2026
A “Priority 1” breathing call is an immediate threat to life.
This heavy industrial facility, which also experienced a chemical spill on Tuesday, is adjacent to two #FortMill schools and is… pic.twitter.com/RCsSsXukne
***
A 911 call placed Wednesday evening reported a woman experiencing difficulty breathing and vomiting at the facility, it is at this time unclear whether the call was related to the chemical spills.
Silfab Solar has yet to respond to FITSNews‘ inquiry into the emergency dispatch.
The firm’s director of operations Greg Basden did however address the DES shutdown order in a press statement issued this afternoon.
“The Silfab technical response team is addressing the issue in coordination with DES and local officials,” Basden said Silfab “made the decision to voluntarily pause operations today.”
***
In response to the chemical spill at Silfab Solar in Fort Mill, Sen. Michael Johnson and I have been in contact with senior leadership at the Department of Environmental Services to assess the impact on our community and request the Department stop work at the site. Our full… pic.twitter.com/CHx5yyirEs
— Wes Climer (@WesClimer) March 3, 2026
***
York County, which has fought assiduously in the courts of law and in the court of public opinion to justify its controversial incentives deal for Silfab, has scheduled a special council session to hear legal advice concerning the situation in executive session, and to potentially take action based on that advice.
The meeting is scheduled for 12:00 p.m EST on Friday March 6, 2026.
A statement from the county – notably not attributed to any one person – stated “we are incredibly disappointed that another issue at Silfab Solar has occurred.”
Citizens who are also “incredibly disappointed” about the situation should note the composition of the county council and demand answers, and if necessary deliver accountability at the ballot box.
Christi Cox — Council chairwoman, District 5
Tom Audette — Vice-chairman, District 1
Andy Litten — Councilmember, District 2
Tommy Adkins — Councilmember, District 3
William “Bump” Roddey — Councilmember, District 4
A. Watts Huckabee, Sr. — Councilmember, District 6
Debi Cloninger — Councilmember, District 7
Council members representing districts three, four and seven are all up for reelection in 2026.

***
This is a developing story stay tuned for further updates…
***
ABOUT THE AUTHOR…
(Via: Travis Bell)
Dylan Nolan is the director of special projects at FITSNews. He graduated from the Darla Moore school of business in 2021 with an accounting degree. Got a tip or story idea for Dylan? Email him here. You can also engage him socially @DNolan2000.
***
WANNA SOUND OFF?
Got something you’d like to say in response to one of our articles? Or an issue you’d like to address proactively? We have an open microphone policy! Submit your letter to the editor (or guest column) via email HERE. Got a tip for a story? CLICK HERE. Got a technical question or a glitch to report? CLICK HERE.




2 comments
This is a super interesting and remarkably local example of paid coverage on this site
Can you imagine how horrible of a spill would have been caused by the Keystone XL pipeline?
Checks would be doled out for that spill too, but for the opposite of what it’s buying in this case.